Regent Bistro Foundation Renewal

Construction and Design:

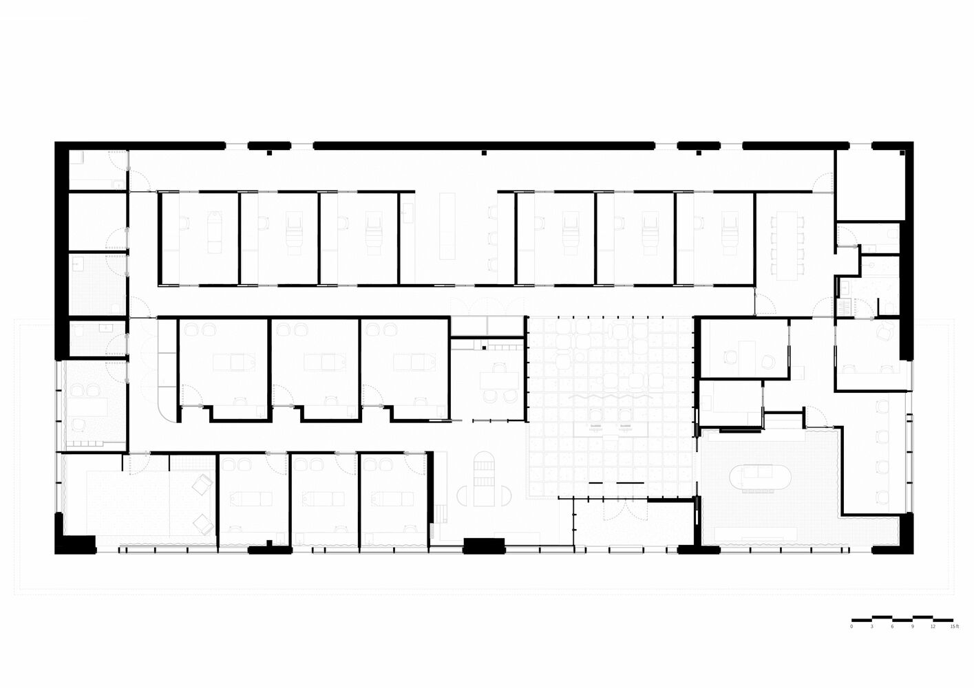
For Atelier Carle, this vision first takes shape through a spatial organization strategy rooted in the site's constraints. Situated within an ordinary and unassuming commercial center in the suburbs of Toronto, this 700-square-meter space faces the dual challenges of insufficient privacy and a lack of natural light—two conditions that demand reconfiguration to cultivate an atmosphere aligned with the client’s evolving needs. Thus, the core of its conceptual approach lies in the thoughtful manipulation of light and privacy, establishing a hierarchical relationship between the two that resonates with the functional layout.
  • 06
    06
    • 05
      05
      • 04
        04
        • 03
          03
          • 02
            02
            • 01
              01
关注官方微信

TEL:204 963 8283    EMAIL:admin@yongjia.ca

Copyright © 2020-2025 YONGJIA RENOVATION All rights reserved    Address:688 Townsend Ave, Winnipeg Manitoba R3T 2V2